Contenido
Un pequeño quitanieves con motor de motosierra ayudará al propietario de la cabaña de verano a limpiar el patio y el área circundante de la nieve. Para hacer productos caseros, no es necesario comprar repuestos costosos. El marco y el cuerpo de la quitanieves se pueden soldar del metal que se encuentra en el patio, lo principal es que hay un motor que funciona. Cuanto más potente sea el motor, más productivo soplador de nieve casero de una motosierra resultará estar hecho.
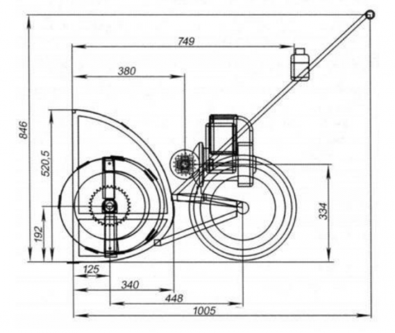
¿Cómo funciona un quitanieves y en qué consiste?
El diseño y el funcionamiento de un soplador de nieve hecho en casa no son diferentes de los de fábrica. La fuerza motriz la proporciona el motor, por lo que es deseable que sea potente. Es mejor tomar un motor para un quitanieves de una motosierra Druzhba o Ural. Los motores de estas marcas se caracterizan por su resistencia, potencia y larga vida útil.
Además del motor en sí de la motosierra, deberá soldar el marco para el equipo de remoción de nieve. Para que la máquina se mueva por sí sola, se puede equipar con un accionamiento y poner un juego de ruedas o orugas. Es más fácil colocar las guías desde abajo. Entonces habrá que empujar el coche para que vaya como esquiar. El cuerpo del quitanieves en sí está doblado y soldado a partir de chapa metálica. El mecanismo de trabajo es la barrena. Rastrilla la nieve con discos dogos, la muele y las dos cuchillas giratorias empujan la masa suelta a través del manguito de salida.
Los sopladores de nieve caseros mejorados también están equipados con una boquilla giratoria. El diseño se asemeja a una aspiradora y consta de un impulsor con palas soldadas. El rotor del soplador de nieve se coloca en un cuerpo redondo, después de lo cual se une a la parte posterior del cubo del mecanismo de la barrena. Durante la rotación, el ventilador aspira la nieve suelta que sale del sinfín. En el interior de la carrocería, la masa de nieve también se muele y se expulsa mediante un fuerte flujo de aire a través del manguito de salida.
La secuencia de trabajo en la fabricación de un quitanieves.
Para diseñar un soplador de nieve con una motosierra con sus propias manos, debe preparar dibujos. Aquí no hay nada complicado. El esquema general del automóvil se puede ver en la foto. El proceso más difícil será el proceso de creación de un tornillo, pero aún es necesario alcanzarlo. Al hacer un quitanieves con una motosierra, las dimensiones del cucharón y la barrena se calculan para que capturen la capa de nieve de 50 cm de ancho y 40 cm de alto.Si la potencia del motor de Friendship o los Urales lo permite, entonces las dimensiones de la estructura se puede aumentar.
Entonces, vamos a conocer como hacer un soplador de nieve de una motosierra vieja pero funcional:
- El primer paso para hacer un soplador de nieve con una motosierra Ural o Druzhba es verificar el rendimiento del motor. Si el motor arranca con facilidad y funciona de manera estable, debe liberarse de los neumáticos, las empuñaduras y otros mecanismos innecesarios para el quitanieves.
- La cuchara está soldada de chapa. Primero, se dobla en semicírculo una tira de 50 cm de ancho y luego se sueldan los estantes laterales. El diámetro interior del cucharón debe ser 2 cm más grande que la barrena. Los tamaños óptimos son: el diámetro de las palas del disco del rotor es de 28 cm, el diámetro de la cuchara es de 30 cm.
- Se corta un agujero con un diámetro de 150 mm desde la parte superior en el centro del cubo. Aquí se suelda un ramal para la manguera de escape. Si el diseño del tornillo se mejora con un ventilador, entonces se corta otro orificio en la parte posterior del cuerpo. Aquí es donde se asegurarán la cubierta del rotor y el impulsor.
- Eje barrena en un soplador de nieve con sus propias manos se puede fabricar a partir de una pieza de tubo metálico circular con un diámetro de 20 mm. Las hojas están soldadas en el centro. Lanzarán nieve. En ambos lados, sueldo muñones a la tubería. Sobre ellos se montan cojinetes n. ° 305. En el lado de la transmisión, el muñón se alarga. Se le coloca un asterisco. En el diseño combinado de rotor de tornillo, se instala una caja de cambios en lugar de las cuchillas, como se muestra en la foto. Transfiere el par de torsión del tornillo al ventilador. Para evitar atascar los cojinetes de la barrena, solo deben instalarse en un tipo cerrado. Los tapones evitan la entrada de arena y suciedad.
- Las cuchillas circulares se cortan de chapa de acero. Primero, los anillos se cortan, se cortan desde el costado en cualquier lugar y luego se estiran hacia los lados. Los medios anillos resultantes de la espiral se sueldan al eje con vueltas hacia las cuchillas. Es más fácil dejar el borde del cuchillo recto, pero es poco probable que una barrena de este tipo supere la acumulación de hielo. Aquí puede intentar cortar un borde irregular que pueda hacer frente fácilmente a la nieve compacta, así como cortar una fina corteza de hielo.
- Puede equipar sopladores de nieve caseros con una barrena con cuchillos de goma. A menudo se cortan de neumáticos de automóvil con una sierra de calar. Pero este diseño solo hará frente a la nieve suelta.
- Para instalar la barrena dentro del cucharón, los cubos de los cojinetes están atornillados a los estantes laterales. Es importante encontrar el centro exactamente aquí, de lo contrario, el tambor se moverá y las cuchillas se adherirán al cuerpo del cubo.
- Cuando el diseño del cucharón fabricado anteriormente está equipado con una barrena, es hora de pensar en conectar un motor de motosierra a la quitanieves. Aquí debe soldar un marco en el que se fijarán todos los elementos del soplador de nieve.
- La foto muestra un diagrama del marco más simple. Está soldado de una esquina de metal. El tamaño óptimo de la estructura es de 48x70 cm. Se coloca un puente en el medio y se le unen dos elementos longitudinales, ajustando el motor de la motosierra a los sujetadores.
- Cualquier juego de ruedas es adecuado para el movimiento del quitanieves. Puede ser accionado por un motor de motosierra para crear una máquina autopropulsada. La desventaja de este diseño es la mala permeabilidad en nieve profunda. Es más fácil utilizar patines de madera en lugar de ruedas. Los esquís se deslizan fácilmente en la nieve y no se caen.
- Cuando se completa el ensamblaje del bastidor con el tren de aterrizaje, se le adjunta un cucharón con una barrena. Detrás de él, se instala un motor retirado de una motosierra. Las poleas del eje de trabajo del motor y la barrena están conectadas con una correa. Si se seleccionan ruedas dentadas, coloque la cadena.
Todo el mecanismo del quitanieves ensamblado debe girarse a mano. La barrena debe girar fácilmente y las cuchillas y las piezas de transmisión no deben adherirse al bastidor ni al cucharón. Después de recibir un resultado positivo, se completa el montaje del quitanieves. Queda por fijar el tanque de combustible al marco, hacer manijas de control y cerrar todos los mecanismos de trabajo con una carcasa galvanizada.
El video muestra un soplador de nieve impulsado por un motor de motosierra Ural:
Al final, llega el momento más emocionante: arrancar el motor. Si no se cometen errores durante el montaje, la barrena comenzará a girar cuando el motor comience a funcionar. El operador solo necesita ponerse una manga con una visera de guía en la salida del cucharón y puede intentar limpiar la nieve.





