Contenido
Una parte integral de sus vacaciones de verano es cocinar a fuego abierto. Muy a menudo, se lleva un brasero de metal portátil a la naturaleza, se hace un fuego y se fríe una barbacoa. Sin embargo, con mal tiempo y con la llegada del frío, resulta incómodo descansar al aire libre. Una glorieta será la solución al problema, pero será inconveniente usar una barbacoa de metal. El principal obstáculo es el humo del fuego. Una parrilla de ladrillos erigida en una glorieta ayudará a equipar un lugar de descanso con todas las comodidades, cuyo humo irá mucho más allá de las instalaciones.
¿Por qué un brasero de ladrillo es mejor que el metal?
Puede instalar un brasero en una glorieta construida no solo con ladrillos. Si tiene una máquina de soldar, habilidades y material, la estructura se puede soldar de metal. Pero, ¿será mejor una barbacoa de acero que una estructura de ladrillo?
Los braseros de metal son bastante sencillos de fabricar, incluso con chimenea. Basta soldar las piezas de acero cortadas y la estructura está lista. Comenzaremos a buscar las desventajas de una barbacoa de este tipo con su funcionalidad. Primero, el metal tiende a quemarse y deformarse por el calor. La vida útil de la barbacoa de metal es pequeña y, con el tiempo, su cuerpo deformado comenzará a estropear el interior de la glorieta. En segundo lugar, el acero se calienta rápidamente y emite calor de manera desigual. La carne en diferentes partes del asado comienza a quemarse, y en algunos lugares, en general, cruda.
La opción ideal son los hornos de ladrillos para una glorieta, donde puede equipar un brasero, una barbacoa y otros dispositivos para cocinar alimentos. El ladrillo no tiene la propiedad de quemarse y deformarse, gana calor gradualmente, después de lo cual emite uniformemente al producto que se está preparando. El dispositivo de un horno de ladrillos o una barbacoa es más complicado que una estructura de metal, pero la vida útil es mucho más larga. En términos de estética, el ladrillo también gana. Si no fue posible obtener el ladrillo de revestimiento, la estufa se puede terminar con piedra decorativa.
Que estructura de ladrillo elegirá
Puede construir una estructura dentro de una glorieta de ladrillo con sus propias manos para cocinar. Muchos se apresuran inmediatamente a buscar un dibujo en Internet, donde se encuentran con otro problema. Resulta que hay muchas variedades de barbacoas de ladrillo. Entonces, ¿dónde parar? Cabe señalar de inmediato que solo una construcción con chimenea es adecuada para un mirador, y esto ya es una estufa real. Pero lo que se puede organizar en él, ahora lo resolveremos.
Brasero
La solución tradicional para la construcción de una estufa para cocinar barbacoa es instalar una barbacoa de ladrillo dentro del mirador. El dispositivo de una estufa de este tipo consiste en un brasero, sobre el cual se eleva una chimenea. Por lo general, se coloca un nicho debajo del brasero: leñador... La carne a la parrilla se cocina ensartándola en brochetas. Por lo general, una estufa de este tipo se coloca contra la pared más alejada de la glorieta.
Para construir un brasero con ladrillos, no necesita un dibujo complejo. Incluso se permite soldar un brasero de metal en forma de caja, que simplemente se tapia en la glorieta. Si lo desea, el diseño de la barbacoa puede resultar complicado. Se construye un nicho adicional entre el brasero y la chimenea. Debe estar bien cerrado para que el humo no entre en la glorieta. Este nicho es un excelente ahumadero. Ahora, además de la barbacoa, todavía habrá productos ahumados en la mesa.
B-B-Q
Recientemente, la mujer barbacoa se ha puesto de moda. El principio de preparación de los alimentos no ha cambiado: hay carbones dentro del brasero y el producto se fríe encima. Solo si, en el caso de la barbacoa, la carne se ensarta en un pincho, luego en una parrilla de barbacoa se coloca encima de la parrilla. Puede instalar una barbacoa de ladrillo en una glorieta de acuerdo con el mismo principio que una barbacoa. El dibujo y el dispositivo de construcción son los mismos, solo que sobre el brasero, se proporcionan protuberancias para colocar la rejilla. Pueden estar hechos de ladrillos o pueden incrustarse piezas de refuerzo en la mampostería. La parrilla se hace extraíble, luego la barbacoa es fácil de reconstruir en la parrilla.
Las barbacoas de cenador portátiles son muy populares, que se pueden instalar en cualquier lugar, incluso en el centro. La única condición para usar una barbacoa móvil en una glorieta es instalar una campana encima.
Estufa rusa
La mejor opción es una estufa de ladrillos para la glorieta, donde se proporcionan varios dispositivos para ayudar a preparar la comida. El dibujo de una estufa rusa es complicado y una persona no puede dominar la construcción sin experiencia. Aquí se necesita un fabricante de estufas.
La estufa rusa está equipada con una encimera, se instala un caldero para cocinar pilaf, se construye un nicho para un ahumadero sobre el brasero. En la propia barbacoa, se prevén proyecciones para la parrilla de la barbacoa. La estufa debe construirse con una leña espaciosa para almacenar leños.
¿Qué más se puede construir con ladrillos en una glorieta?
Un caldero se considera un buen dispositivo para cocinar en una glorieta. Un mini-horno con chimenea se coloca debajo de su instalación de ladrillos. Se corta un agujero en la encimera, donde se sumerge el caldero. La foto muestra cómo su parte inferior está sumergida en la cámara de combustión.
La disposición en una estufa de chimenea es importante para una glorieta acristalada. En una habitación así, puede relajarse incluso en invierno, con cualquier helada.
La estufa rusa estará dotada con todas las funciones si todavía hay una parrilla instalada en ella. Es decir, se instala una cámara especial, dentro de la cual el fuego asa la carne por todos lados. La foto muestra todo un complejo de hornos multifuncionales.
Proyectos de barbacoa
Para conocer, proponemos considerar los proyectos de dos barbacoas. Cada dibujo muestra las dimensiones, pero solo con fines informativos. Las dimensiones de las barbacoas de ladrillo son calculadas individualmente por un fabricante de estufas experimentado para un cenador específico.
El primer proyecto de la foto es para una barbacoa rectangular que se puede instalar dentro de la glorieta contra la pared del fondo.
La siguiente foto muestra un brasero de ladrillos de esquina. El principio de construcción es el mismo, solo la estructura se puede colocar en la esquina de la glorieta.
Disposición de la base para una barbacoa o estufa de ladrillo.
Una parrilla de ladrillo, y más aún una estufa rusa, es una estructura muy pesada que requiere una base confiable. ¿Cómo hacer una base de hormigón tú mismo? Es muy sencillo. Es posible verter una base de tira alrededor del perímetro del futuro horno, pero en condiciones de suelo agitado, esta no es la mejor opción. Para evitar que la base reviente, deberá enterrarse por debajo del nivel de congelación del suelo.
La opción ideal es hormigonar una losa monolítica. Para hacer esto, se cava un hueco de hasta 500 mm a lo largo del tamaño de la barbacoa, el fondo se cubre con una capa de arena con piedra triturada de 200 mm de espesor y se coloca una malla de refuerzo.
El encofrado se coloca alrededor del foso. Las tablas deben sobresalir al menos 100 mm del suelo. La base se vierte con hormigón con piedra triturada.Hasta que el cemento se endurezca por completo, no se realiza ningún trabajo en la base.
Construcción de una estufa rusa
Ahora veremos cómo construir una estufa rusa con ladrillos en una glorieta. La instrucción se proporciona solo con fines informativos y, en caso de trabajo independiente, es recomendable obtener el asesoramiento de un experto.
Trabajo de preparatoria
Entonces, la base de concreto para la estufa dentro de la glorieta se ha congelado, es hora de comenzar a prepararse para el trabajo de piedra. Para colocar un brasero o una estufa rusa, necesitará ladrillos rojos y refractarios. El primero irá a las paredes y se colocará una cámara de combustión con ladrillos refractarios. Cabe señalar de inmediato que los ladrillos de silicato y huecos no son adecuados para trabajos en hornos.
Desde arriba, la base de hormigón se cubre con una lámina de material para techos para impermeabilizar. La primera fila de ladrillos se coloca en seco sin mortero. Forma el contorno del horno de pedidos. En esta etapa, la mampostería se ajusta de tal manera que se evite cortar el ladrillo en el proceso de construcción adicional.
Para obtener ladrillos confiables, debe preparar adecuadamente el mortero. A veces, las paredes de una estufa o barbacoa se colocan sobre mortero de cemento y la cámara de combustión en sí está sobre arcilla. Puede hacer esto, aunque muchos fabricantes de estufas están más inclinados a usar solo mortero de arcilla. Existe el contenido de grasa de la arcilla. A partir de aquí se determinan las proporciones de la solución, y lo hacen individualmente. Pueden ser 1: 1 o 1: 2. Cuanto más gruesa es la arcilla, más arena se agrega.
Los ladrillos refractarios dentro de la cámara de combustión se colocan sobre otro mortero de arcilla resistente al fuego. Tal mezcla seca se puede comprar en una tienda, y en casa solo será necesario diluirla con agua. Es recomendable preparar otra solución para la chimenea. La condensación destruirá la mampostería de arcilla, por lo que la mejor opción sería una solución de tres partes de arena y una parte de masa de cal. Para mayor resistencia, se permite la adición de una parte de cemento.
El diseño de la primera fila y las siguientes comienza desde la esquina. Es importante observar el nivel del ladrillo para que la estufa o parrilla no se deforme. En todas las esquinas, un cable está incrustado en la mampostería de cada fila. Dará fuerza a la estructura.
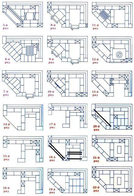
Albañilería de hornos
La foto muestra un ejemplo de un esquema de colocación de un horno de ladrillos. En este proyecto, por un lado, se ubica un ahumadero con barbacoa en la parte superior y una chimenea encima. Hay un cenicero debajo de la caja de fuego de la parrilla. En el otro lado de la estufa, hay un nicho para almacenar leña. Se presenta a partir de 6 filas de ladrillos. En la octava fila, se hace una repisa y se coloca una hoja de acero que cubre la leña desde arriba.
La parte inferior del cenicero comienza a equiparse desde la segunda fila de ladrillos. Aquí también es mejor utilizar una chapa de acero. La altura de la cámara de cenizas es de 3 ladrillos. La abertura del cenicero se cierra con una puerta de hierro fundido. En la sexta fila sobre el cenicero, se colocan barras de rejilla y la cámara de combustión se expulsa de 4 filas. En su interior está construido con ladrillos refractarios.
Si cuenta desde la parte inferior del horno, la undécima fila de ladrillos está hecha con una repisa en el medio. Encima se coloca una placa de hierro fundido, que además forma la parte inferior del ahumadero. Arriba están las filas de la propia cámara de ahumado, y una puerta está instalada en su abertura.
En el otro lado del horno, se colocan dos filas de ladrillos rojos y una fila de ladrillos refractarios sobre una hoja de metal. Se forma un brasero en este sitio. La colocación adicional de la estufa sube hasta la fila 16, donde comienzan a formar un arco. Termina en la fila 19, formando la parte superior de la cámara de barbacoa.
Además, la mampostería se conduce a 22 filas, donde se coloca una hoja de acero con ventanas para humo sobre el ahumadero. Permitirán fumar en frío y en caliente. A partir de la fila 23, haga la parte superior de la estufa. Más chasquido va con un desplazamiento del ladrillo hacia adentro en un cuarto. La parte superior de la estufa consta de 10 filas, después de las cuales se coloca una chimenea uniforme.
En el video puedes ver un brasero hecho de ladrillos:
Conclusión
Para mayor belleza, el horno de ladrillos terminado está revestido con piedra decorativa. Puede fijar decoraciones forjadas en la pared, hacer un atizador, un agarre y otros dispositivos.















