Contenido
La disposición de cualquier área suburbana comienza con la construcción de un baño al aire libre. Este sencillo edificio tiene una gran demanda, incluso si la casa ya tiene un baño. Cualquiera puede construir un baño para una residencia de verano. Para hacer esto, debe tener a mano un dibujo simple, varias herramientas económicas y material de construcción.
¿Qué son los baños al aire libre?
Si le da el diseño a una vista general, entonces un inodoro al aire libre puede ser con un pozo negro para la acumulación de desechos o sin él. Puede construir de forma independiente un inodoro del siguiente diseño en una cabaña de verano:
-
El diseño del inodoro más simple consiste en un cubículo, debajo del cual hay un acumulador de desechos.... Si el pozo negro está diseñado para una gran cantidad de usuarios, sus paredes están construidas con capital, por ejemplo, de ladrillo u hormigón. A medida que las aguas residuales se llenan de aguas residuales, el accionamiento del baño del campo se bombea con una máquina de aguas residuales. Cuando el inodoro rara vez se usa, el tanque de almacenamiento se hace poco profundo. Después de llenarlo, la casa del baño se traslada a otro lugar y se conserva el antiguo pozo. La foto muestra un ejemplo de un baño de campo con un pozo negro.
-
Armario de contragolpe del inodoro representa el mismo baño de campo con un pozo negro, que se puede ver en la foto. La diferencia de diseño es el tanque de almacenamiento en sí. En su forma, se aumenta el pozo negro desde el lugar de instalación del asiento del inodoro hasta el acumulador general. Además, el fondo del tanque está hecho con pendiente. Esto permite que los residuos sean transportados por gravedad al almacenamiento general. El pozo negro del armario de reacción del país se hace hermético y aislado. Puede usar dicho sistema en un inodoro al aire libre para una residencia de verano o un baño dentro de la casa. Es aconsejable construir un armario de reacción en el interior en la etapa inicial de la construcción de una casa de campo, ya que el muro de carga del edificio está en riesgo.
-
El inodoro rural más simple se considera un armario de polvo.... Su diseño no prevé la excavación de un pozo negro. Es una especie de armario seco. Los desechos se recogen en un recipiente pequeño debajo del asiento del inodoro. Además, después de cada visita al baño, las heces se rocían con turba. Para hacer esto, se instalan un cubo separado con polvo y una cuchara en la casa. El armario de polvo está equipado con un tanque de turba adicional y un mecanismo de distribución. Después de visitar el baño, basta con girar la manija del mecanismo y la turba se esparce automáticamente por todo el fondo de la unidad. Después de llenar el contenedor con desechos, se arrojan a un pozo de compost, donde se obtiene un buen fertilizante para el jardín. Un inodoro de este tipo para una residencia de verano es adecuado con la condición de una visita rara de personas. En la foto se puede ver un ejemplo de un sistema de armario de polvo para dacha.
Antes de comenzar a construir un inodoro en el país con sus propias manos, es importante determinar la profundidad del agua subterránea. La elección del diseño dependerá de esto. Un inodoro con un pozo negro es adecuado para una cabaña de verano donde las capas de agua subterránea se encuentran a más de 2,5 m de profundidad.En todos los demás casos, tendrá que contentarse con un armario de polvo o enterrar todo un barril de plástico en el suelo.
Elegir un lugar para un baño de campo.
A pesar de la sencillez del diseño, el inodoro construido en el país no debe causar molestias a los vecinos, además de servir como fuente de contaminación del suelo y el agua. Eligen un lugar para un baño al aire libre, guiados por normas sanitarias que requieren respeto por la distancia:
- a cualquier fuente de agua - 25 m;
- a sótanos, edificios residenciales - 12 m;
- a la casa de baños o ducha de verano - 8 m;
- a la frontera o cerca de un vecino - 1 m;
- a plantaciones de arbustos - 1 m;
- a árboles frutales - 4 m.
Es aconsejable elegir un lugar para la construcción de una cabaña de verano, teniendo en cuenta el paisaje del sitio y la rosa de los vientos. En terrenos montañosos, el baño al aire libre se coloca en el punto más bajo. Es importante que el viento se lleve los malos olores en dirección opuesta a los edificios residenciales propios y vecinos.
La construcción de un baño de campo comienza con un pozo negro.
Debajo del inodoro de la calle, además del armario de polvo, es necesario cavar un pozo negro. Hay muchas opciones para organizar el tanque. Si ya estamos considerando cómo construir un baño en el país de principio a fin, entonces debemos comenzar con un pozo negro.
Determine el tamaño del pozo negro para el baño del país.
Antes de cavar un pozo, surge la primera pregunta, cómo determinar correctamente sus dimensiones. Detengámonos de inmediato en la profundidad, que no debe exceder los 3 m El tamaño de las paredes laterales del tanque depende de la cantidad de personas que viven. Si hay suficiente material de construcción, el pozo negro se puede agrandar. Entonces tendrá que bombearse con menos frecuencia. Por lo general, se excava un pozo negro con una profundidad de 2 m debajo de un inodoro de calle simple, y el ancho de las paredes se hace de 1 a 1,5 m.
Si el alcantarillado de la casa está conectado al pozo negro, se tiene en cuenta el volumen de aguas residuales por mes para cada persona que vive en el país. Por ejemplo, una familia de tres gastará unos 12 m por mes3 agua. El pozo negro se hace con un margen, por lo que es deseable un volumen de hasta 18 m3.
Características de la construcción de un pozo negro.
Un pozo negro para un baño al aire libre en el campo se construye con todo tipo de materiales disponibles en la finca. Se utilizan ladrillos rojos, bloques de hormigón, anillos de hormigón, recipientes de plástico y metal, neumáticos viejos. El más barato, confiable y fácil de construir es un pozo de ladrillos. Puede estar sellado o no. En el primer caso se hormigona el fondo hasta 15 cm de espesor, se enlucen las paredes revestidas con hormigón y se trata la parte superior con masilla bituminosa.
Si el suelo de la cabaña de verano tiene buenas propiedades absorbentes, el pozo negro tiene fugas. El fondo del tanque de almacenamiento está cubierto con una capa de arena y grava de 15 cm. Resulta drenaje, a través del cual el líquido será absorbido por el suelo. El ladrillo de las paredes para un pozo con fugas está escalonado. A través de las ventanas resultantes entre los ladrillos, el líquido también será absorbido por el suelo.
Desde arriba, el pozo negro se cubre con una losa de hormigón con una trampilla de servicio, así como una abertura para un asiento de inodoro. Si no hay una losa de concreto, el tanque se cubre con estaño, se coloca una malla de refuerzo y luego se vierte con concreto. Resulta una estufa casera de hormigón armado.
Pozo ciego de anillos de hormigón armado
El más confiable es un pozo hecho de anillos de hormigón. El embalse fabricado puede durar hasta 100 años en el país. La complejidad de la construcción radica solo en el hecho de que se requiere un equipo de elevación para sumergir los anillos en el pozo.
Entonces, tomando de medio metro de un margen del diámetro del anillo de hormigón armado, cavan un pozo.El fondo se hormigona de la misma manera que para un pozo negro de ladrillos. Si logró comprar un anillo de concreto con un fondo terminado, se instala inmediatamente en el pozo. Antes de esto, es recomendable verter una capa de arena de 10 cm debajo del fondo. Los siguientes anillos se apilan uno encima del otro. Si hay cerraduras de conexión en los extremos de los productos de hormigón armado, es suficiente entrar en las ranuras durante la instalación. En ausencia de cerraduras, las juntas de los anillos se hacen en una solución de hormigón para la estanqueidad y se sujetan con anillos de metal.
El pozo negro terminado se trata con betún para impermeabilización y se cubre con una losa de concreto en la parte superior.
Cesspool de un recipiente de plástico
Si la construcción de un baño en el país es imposible debido al agua subterránea, un recipiente de plástico vendrá al rescate. El pozo se excava un poco más grande que las dimensiones del tanque. El trabajo en un sitio de este tipo se realiza durante un período en el que el agua subterránea es baja. Debajo del recipiente de plástico, el fondo debe estar hormigonado y 4 bucles de metal se fijan a la malla de refuerzo. Deben sobresalir del hormigón en altura para que el tanque de plástico se pueda atar a las bisagras. Esto se hace para que, cuando se eleve, el agua subterránea no empuje el contenedor de luz fuera del suelo como un flotador.
Una vez fraguado el hormigón, el tanque de plástico se coloca en el pozo. El contenedor se ata a los bucles con cables. El relleno se realiza simultáneamente con el llenado del depósito con agua, de lo contrario, la presión del suelo comprimirá sus paredes. Es mejor llenar el espacio entre las paredes del tanque y el pozo con una mezcla seca de cinco partes de arena y una parte de cemento. Cuando el tanque está completamente lleno, el agua se bombea con cualquier bomba.
El video habla sobre el pozo negro:
El procedimiento para la construcción de una casa de baño de campo.
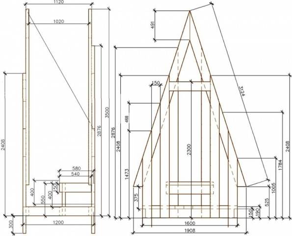
Al construir un inodoro para una residencia de verano con sus propias manos, las instrucciones paso a paso lo ayudarán a determinar el orden de trabajo. Desde el principio, es importante elaborar un diagrama de la casa, donde se dibujará su forma y se indicarán todas las dimensiones. Los dibujos se pueden hacer a su propia discreción o puede encontrarlos ya hechos en Internet. Se considera el tamaño óptimo del inodoro en el país: el ancho de la casa es de 1 m, la profundidad es de 1,5 m, la altura es de 2 a 2,5 m.
Por ejemplo, sugerimos mirar los dibujos de las dimensiones del inodoro en el país con sus propias manos, lo que lo ayudará a determinar las dimensiones de la casa de la calle.
La versión más simple y común de un retrete en la calle es una casita para pájaros. La foto muestra la estructura terminada, una tabla de consumibles, así como la estructura en sí.
La siguiente foto muestra un modelo de una casa de baño al aire libre en forma de cabaña, no menos popular para regalar.
Hacemos la base de una casa de madera.
Comenzamos a construir un baño para una residencia de verano con la preparación de la base. La casa de madera es liviana, por lo que la base más simple la resistirá. Es importante tener en cuenta que en la parte trasera del edificio deberá hacer una trampilla de apertura para limpiar el pozo negro y organizar la ventilación. Es óptimo desplazar la casa en 2/3 con respecto al tanque de almacenamiento.
Habiendo realizado las marcas en el suelo según las dimensiones de la futura casa, procedemos a realizar la base. Basta colocar cuatro bloques de hormigón en las esquinas debajo de una estructura de madera clara. Si se planea fabricar el marco metálico de la casa para el revestimiento con cartón ondulado, la base se puede hacer con piezas excavadas verticalmente de tubos de amianto de 1 m de largo La cavidad interior del tubo se rellena con hormigón. Sobre la base terminada, colocamos impermeabilización a partir de piezas de material para techos.
Recopilamos el marco de una casa de madera.
Entonces, la base está lista, es hora de construir un inodoro en el país con sus propias manos de acuerdo con estas instrucciones:
- Comenzamos el trabajo haciendo un soporte con ángulos rectos. Derribamos el marco de la casa desde una barra con una sección de 80x80 mm. Colocamos un puente aproximadamente en el centro de las barras laterales a lo largo del marco. La pared frontal del asiento del inodoro se adjuntará a él.Fijamos el marco terminado con pernos de anclaje a la base de hormigón.
-
Rellenamos el piso de una tabla de 3 cm de grosor en el marco. Es importante no olvidar dejar la trampilla debajo del asiento del inodoro.
-
A continuación, construimos un inodoro a partir de una barra con una sección de 50x50 mm. Es decir, primero debes construir el marco de la casa. Al soporte ya realizado con el suelo, fijamos las rejillas de las paredes laterales. Además, los elementos de la pared frontal deben ser 10 cm más altos que los pilares traseros, lo que permitirá dar una pendiente al techo del baño del país.
-
Instalamos jibs en diagonal entre las rejillas en cada pared del inodoro. Estos espaciadores agregarán fuerza al marco. En el frente, instalamos dos estantes adicionales para la puerta. La distancia entre ellos es suficiente 60 cm. Por encima de las futuras puertas a la miel con bastidores, adjuntamos una barra transversal, que forma el marco de la ventana de la casa. La fijación confiable de los bastidores del marco de la casa es proporcionada por esquinas metálicas superiores.
- Cuando todo el marco de la casa está listo, ensamblamos el marco del asiento del inodoro a partir de la madera. En la foto se muestra un ejemplo de la construcción. Cosemos el asiento del inodoro terminado a lo largo del marco con una tabla.
En esto, el esqueleto de la futura casa del baño de la calle para la casa de campo está listo, es hora de comenzar a enfrentar.
Envainamos el marco del inodoro rural con una tabla.
Mirar la casa no debería ser un gran problema. Cortamos las tablas al tamaño de las paredes traseras y laterales, las ajustamos entre sí y las clavamos. Dependiendo de la longitud de las piezas de trabajo, se pueden unir al marco vertical u horizontalmente. Alternativamente, el cartón se puede reemplazar con cartón ondulado u otro material en láminas.
Instalación de techo y ventilación
Para el techo, clavamos una caja desde la tabla al marco superior del marco de la casa. Fuera de la caja, basta con proporcionar una salida de 30 cm para que la lluvia no moje las paredes del inodoro. Fijamos cualquier hoja de material para techos a la caja. El cartón ondulado, los azulejos metálicos o la pizarra ordinaria servirán.
Fijamos el tubo de ventilación con tiras de metal a la pared trasera del inodoro. El conducto de aire está formado por un tubo de plástico de 100 mm de espesor. Sumergimos la parte inferior del elevador debajo de la tapa en un pozo negro a una profundidad de 10 cm. Llevamos la parte superior del conducto de aire 20 cm más arriba del techo del inodoro.
Instalación de la puerta y suministro de iluminación interior de la vivienda.
La puerta de la casa se puede derribar de un tablero normal, puede comprar uno de plástico o hacer un marco y enfundarlo con cartón corrugado. Lo fijamos a los montantes con bisagras. Fijamos las manijas en ambos lados y el pestillo desde el interior a la puerta con tornillos autorroscantes. Para evitar que la puerta se abra al azar, el cerrojo se puede colocar adicionalmente en el exterior.
Si hay un punto no muy lejos del baño de campo donde se puede conectar un cable eléctrico, es recomendable estirar la iluminación dentro de la casa. Esto proporcionará comodidad para el uso nocturno. Durante el día, el baño de campo estará iluminado gracias a la ventana sobre las puertas.
El video habla sobre la fabricación de un inodoro:
Conclusión
Aquí están todas las recomendaciones generales sobre cómo hacer un baño en el país con sus propias manos usando dibujos simples.
























