Contenido
El trabajo manual en la parcela del jardín es agotador, por lo que los propietarios intentan mecanizarlo siempre que sea posible. Primero, una persona compra un tractor a pie o cultivador... Pero con el tiempo, esta técnica se vuelve insuficiente para completar las tareas asignadas y el propietario comienza a reequiparla. Por ejemplo, ahora consideraremos cómo ensamblar un mini tractor de un tractor de operador a pie Neva con nuestras propias manos y descubriremos qué se necesita para esto.
Qué se necesita para convertir el tractor de operador a pie "Neva" MB-23S en un mini tractor
Antes de que aprenda a hacer un minitractor con un tractor de operador a pie Neva, averigüemos qué saldrá de él y qué piezas se necesitan. Para empezar, como resultado de la conversión, tendrá un vehículo de cuatro ruedas. Además de realizar todas las operaciones para el procesamiento del jardín, en mini tractor casero puede transportar mercancías, mantener una granja en casa, cuidar el jardín. Para ampliar la funcionalidad de la unidad, deberá comprar accesorios. Por ejemplo, si coloca la cuchilla en la parte delantera del marco, en invierno puede eliminar la acumulación de nieve del territorio adyacente a la casa con un mini tractor.
Se venden kits especiales para un montaje rápido del tractor. El kit contiene todos los repuestos necesarios. Si realmente desea ahorrar dinero por completo, puede encontrar repuestos viejos en un automóvil de pasajeros. Tendrá que jugar con ellos por más tiempo, haciendo que se ajusten, pero un mini tractor de este tipo dará sus frutos más rápido debido al bajo costo.
El modelo "Neva" MB-23S no fue elegido accidentalmente como ejemplo. El tractor de operador a pie está equipado con un motor diésel de cuatro tiempos y 9 litros. desde. Gracias a la alta potencia de tracción del motor, será posible montar un minitractor de alto rendimiento. La unidad tiene suficiente potencia para trabajar con muchos tipos de accesorios.
Entonces, para la reencarnación, necesita un tractor de empuje que funcione, una columna de dirección, cojinetes, un juego de ruedas y, por supuesto, metal. El marco generalmente se suelda a partir de un canal, perfil o tubería. Para fortalecer los nodos importantes, necesitará una esquina y una chapa de acero con un espesor mínimo de 5 mm.
La maniobrabilidad, la estabilidad y la productividad dependen de la correcta fabricación del tren de rodaje. hecho en casa unidad. Al ensamblar minitractor de un tractor a pie Neva, es recomendable recoger ruedas con un radio de 14 a 18 pulgadas. Las ruedas pequeñas harán que el vehículo vuelque en terrenos difíciles, mientras que las ruedas grandes dificultarán el control de la máquina.
Empezamos a modernizar el tractor a pie
Entonces, descubrimos lo que necesitamos para trabajar. Ahora es el momento de considerar en detalle cómo hacer un mini tractor con un tractor Neva con sus propias manos.
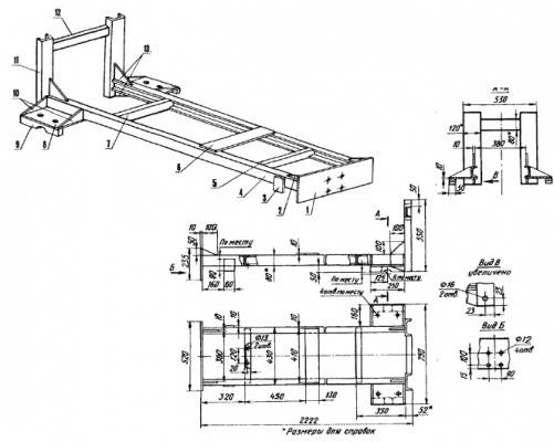
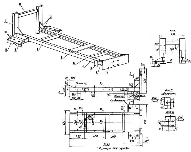
Durante el trabajo, siempre debe haber un diagrama a mano, que indique todos los nodos y dimensiones de las piezas de trabajo. Si ya lo ha decidido, procedamos:
- Guiados por el dibujo, los espacios en blanco para el marco se cortan con una amoladora. La carga principal caerá sobre la estructura, por lo que debe fortalecerse. Los elementos del marco están conectados mediante soldadura. Para mayor confiabilidad, las uniones complejas se refuerzan con una conexión atornillada. Un puente soldado en el centro no interferirá. Aumentará la resistencia del cuadro a la deformación al transportar cargas pesadas fuera de la carretera. Recuerde soldar los soportes de los accesorios de inmediato al hacer el marco. Esto será más difícil más adelante debido al acceso limitado.
- El marco de un minitractor puede ser sólido y estar roto. Si la elección recayó en la segunda opción, entonces se necesita una bisagra. Esta pieza conecta dos medios marcos.Pero luego, la columna de dirección también se instala en la fractura de las dos partes del marco.
- El orden en el que se ensambla el chasis depende de la ubicación del motor. Si se coloca delante del bastidor, entonces el ancho de vía permanece nativo, como lo era en el tractor de conductor a pie. El juego de ruedas traseras está fijado al cuadro en el eje. Está hecho de un trozo de barra o tubería de acero grueso. Para montar las ruedas en el eje, necesitará cubos y cojinetes.
- Si el motor está instalado en la parte trasera del bastidor, entonces las ruedas nativas del tractor de conductor a pie están unidas a un puente más ancho. De lo contrario, la pista estrecha afectará al mal equilibrio del minitractor.
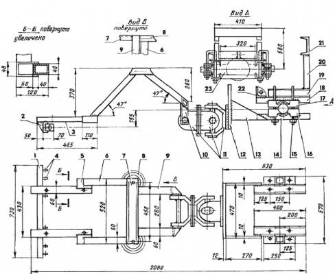
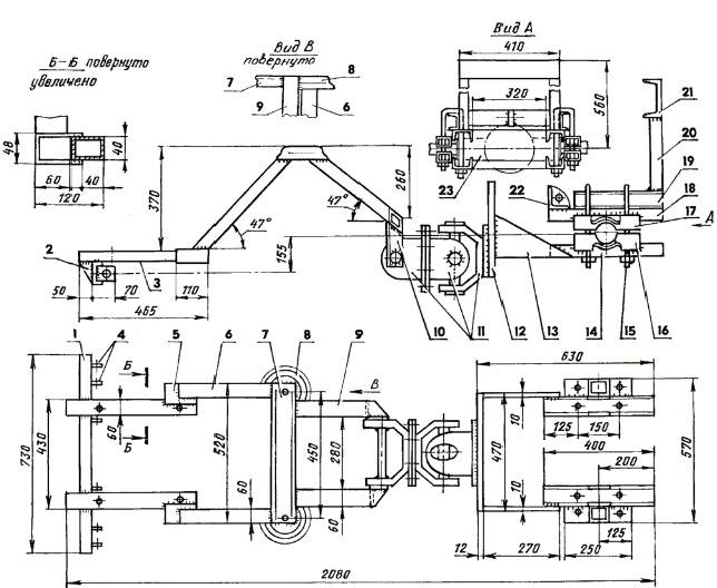
- El control de dirección de una unidad hecha en casa se puede ensamblar desde las manijas nativas del tractor de empuje. Pero tal diseño creará incomodidad cuando necesite retirar el tractor. La mejor opción es instalar una columna de dirección tradicional.
- Con una estructura de estructura de una pieza, las varillas de la columna están conectadas al eje delantero. Es ella quien girará con ruedas. En un marco roto, la columna pivota todo el frente con eje y ruedas. En este caso, debe usar dos engranajes adicionales: una parte está fijada capitalmente al elemento de la parte delantera del marco y la otra está unida a la columna de dirección.
- El asiento del conductor está soldado al bastidor en bastidores. Aquí puede pensar en soportes flotantes para permitir ajustes en el lugar de trabajo. Si se supone que funciona en un mini tractor por la noche, debe instalar dos faros y, para moverse por la carretera, deberá agregar luces laterales. Solo para que funcione la iluminación, se instala una batería por separado, ya que el tractor de conductor a pie no tiene una salida para conectar los faros.
Al final del montaje, el minitractor debe funcionar sin carga. Si se detectan errores en los cálculos, las unidades defectuosas se corrigen, de lo contrario esta técnica no funcionará durante mucho tiempo.
El video ofrece una descripción general del minitractor del tractor de operador a pie Neva:
Y ahora proponemos mirar los dibujos fotográficos que ayudarán a reelaborar el tractor de empuje. Los diagramas muestran una estructura con un marco sólido y roto.






